
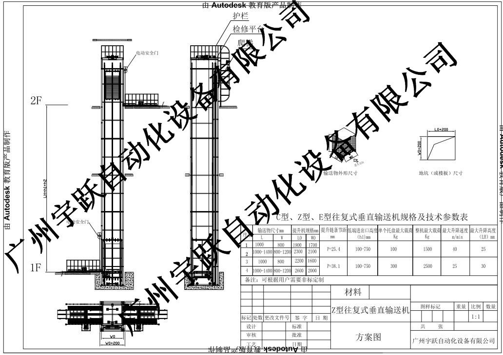
C型 Z型 E型技术方案图





往复式提升机是利用升降平台的上下往复运动来实现物料的垂直输送。升降平台上可装上不同种类的输送设备。
往复式升降机
往复式提升机是利用升降平台的上下往复运动来实现物料的垂直输送。升降平台上可装上不同种类的输送设备,并与出入口输送设备相配合,使输送过程实现完全自动化;升降平台的上下行程均可输送物料,在升降平台的一个循环过程中可使物料同时双方向流动;提升行程范围大,但输送量随着行程的增加而减少。
形式多样,布置灵活,物料可以从各个方向上进出提升机,便于生产设备布局;承载范围大,大可达3000Kg;可设置各种安全装置,提高设备运行的安全性;升降行程为20m;升降速度<30m/min;大载荷<3000kg;物料种类有包装箱、托板;装饰材料为铝型材+阳光、钢板、铝网等;适用于家电,食品,医药,烟草,机械加工等行业的垂直输送。
产品特点
● 结构简单
● 模块化组合,组装比较简单、方便、快捷;
● 运行平稳、维护方便
● 可输送各种形状,大小和重量的物品
● 可以实现货物的升降运输和水平运输
● 可根据客户需求制定佳运行方案
● 配合平面输送机可实现自动搬运,节省工人操作环节;
● 货物不仅可以从正面装载、输出,还可以正面装载背面输出;
应用行业
往复式提升机广泛应用于食品、饮料、烟草、邮政、化工、轻工、机械、电子、食品、仓储物流等自动化生产行业。
应用环境:
温度环境:-25°C~+40°C
湿度环境:80%以下
设置场所:室内(无阳光直射和水直接接触的场所)
标准环境:无腐蚀性气体,爆炸性气体,蒸汽等的环境
|
序号 |
类别 |
规格 |
|
1 |
输送单元载重(kg) |
3000 |
|
2 |
输送物尺寸(mm) |
W2000×L2000 |
|
3 |
升降速度(m/min) |
10-30 |
|
4 |
提升高度(m) |
Max20 |
|
5 |
搭载输送机 |
载重根据客户需求设计 |
|
输送速度根据客户需求设计 |
||
|
输送机尺寸根据输送物大小设计 |
||
|
6 |
电源 |
380V/3ph/50Hz |
|
7 |
输送方向 |
C型/Z型/E型 |
|
8 |
传动方式 |
链条传动 |
|
9 |
电机功率(kw) |
根据客户需求设计 |
|
备注:以上参数仅供常规选型参考,本公司可根据行业特性及客户具体需求提供专项解决方案,详情请咨询销售工程师。 |
||
备注:以上参数仅供常规选型参考,本公司可根据行业特性及客户具体需求提供专项解决方案,详情请咨询销售工程师。